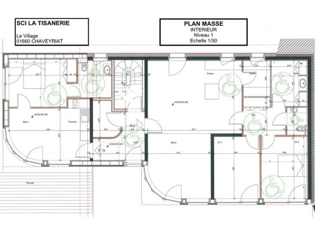
Le plan du premier niveau d'un bâtiment de la Tisanerie fait apparaître l'attention portée à l'accessibilité des personnes âgées. En moyenne, sur les 3 ou 4 logements d'un bâtiment, un sera occupé par un jeune actif ou par un couple, les autres l'étant pas des seniors. C'est la bailleur social Ain Habitat qui sera chargé de trouver les candidats.
La Tisanerie : un projet intergénérationnel écologique et économique (diaporama)
G.N., le 21/11/2012










