Pour rendre l'appartement agréable à vivre, Stéphanie Cayet s'est donc efforcée de créer une partie jour et une partie nuit bien distinctes l'une de l'autre. La salle de bains est ainsi venue prendre place entre la chambre et le bureau, en remplacement de l'ancien dressing. "Il a fallu créer un faux plafond dans la pièce à vivre pour permettre le raccordement de la salle de bains à un point d'eau. Le compromis valait le coup car nous avons pu y intégrer l'éclairage", précise l'architecte d'intérieur.
Désormais, la partie nuit est réunifiée avec chambre, salle de bains et bureau aménagés les unes à côté des autres sur le même axe.
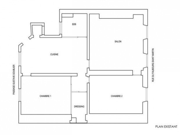
Ci-contre, le plan existant de l'appartement. On se rend compte que les pièces étaient extrêmement cloisonnées.













